Přízemní kom.prostory 59m2 - 28.října Mariánské Hory
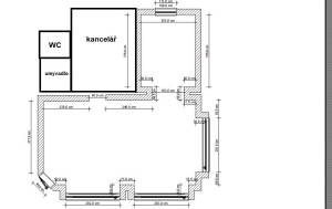
Pronájem velmi pěkných přízemních komerčních prostor s třemi výlohami s dvojsklem, na frekventované ulici 28.října Ostrava - Mariánské Hory. Možno využít jako sídlo firmy, obchod, služby atd.) Prostory rozděleny do třech místností a WC s umyvadlem. Prodejní část 34m2 s krásnými výlohami, módní tapetou a zátěžovým kobercem zn.Vorwerk. Vše sladěno do jednoho odstínu. V případě zájmu možno projednat změnu podlahové krytiny. Další dvě místnost o velikosti 10,6m2 a 14 m2 průchozí z hlavní části. Na podlahách také zátěžový koberec zn.Vorwerk. WC a menší místnost před toaletou s umyvadlem a policí. Možnost připojení na pult ochrany za poplatek 300,- měsíčně. Volné ihned. Nájem 18.500,- CENA K JEDNÁNÍ !! m+ služby ( teplo - (plyn.kotel ) 3.000,-Kč, voda 200,-, elektřina samostatně na nájemce ). Vratná jistina 2 nájmy. Provize RK 15.000,-Kč. MHD 1 minutu chůze. Parkování za domem, nebo v okolních ulicích bez poplatku. Zajímavá nabídka. Nutno vidět.








